Реклама   О проекте  Экспертиза документов

  Понедельник-Воскресенье  9:00-20:00    +7 (383) 312-29-54   info@nonsk.ru

  Главная      О нас       Спецпредложения       Застройщикам       Вакансии       Контакты
Главная Жилой комплекс…

Жилой комплекс «Стелла»

ЖК СтеллаЖК СтеллаЖК СтеллаЖК СтеллаЖК Стелла

ЖК «Стелла»   

 ЖК «Стелла» находится в очень удобном месте, где сочетаются развитая инфраструктура, удобная транспортная развязка и зеленая, отгороженная от шума улицы и соседнего микрорайона зона. Вся важнейшая инфраструктура города, включая его центр, находится для вас в зоне максимум получасовой доступности - даже без наличия собственного автотранспорта.

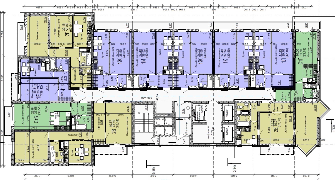
В ЖК «Стелла» есть жилье практически на любой вкус и любого ценового диапазона, от квартир с большой площадью и изысканными планировками до студий. Проектом предусмотрены однокомнатные квартиры от 33 до 41 кв.м., двухкомнатные от 58 до 75 кв.м.

Адрес - ул. Есенина
Этап строительства - Построено 12 домов, Строится 3
Количество корпусов - 
Класс жилья - Комфорт класс
Тип здания - кирпич, монолитно-кирпичный
Этажность - 15-22
Отделка - под самоотделку
Высота потолков - 
Парковка - 
 
 Инфраструктура
Пешком до ближайшего выхода в метро идти всего 8-10 минут. Проехав всего одну остановку от станции метро «Золотая Нива», вы оказываетесь у ТЦ «Сибирский Молл». Практически рядом с «Изумрудным Городом» - магазин настоящей русской кухни «Добрянка». Буквально 6-8 минут прогулки отделяют вас от мини-рынка, магазинов, центров и сервисов, включая компьютерный супермаркет DNS, которыми насыщена развязка «Золотой Нивы». До ближайшего детского сада от «Изумрудного города» всего 7 минут ходьбы, до школы – 5 минут, до детской поликлиники всего 10 минут, до взрослой – 12.
Планировки
ЖК СтеллаЖК Стелла
Цена за м2
от 33 607 
до 76 471  
Застройщик:
Застройщик "Метаприбор"                                  СК «Метаприбор»

                                Тел:

                                8(383) 362-25-50  

 
smmscore.comSetup.ru: Создай и раскрути свой сайт бесплатно