Реклама   О проекте  Экспертиза документов

  Понедельник-Воскресенье  9:00-20:00    +7 (383) 312-29-54   info@nonsk.ru

  Главная      О нас       Спецпредложения       Застройщикам       Вакансии       Контакты
Главная Жилой комплекс…

Жилой комплекс «Кларус Парк»

Жилой комплекс «Кларус Парк»Кларус ПаркКларус ПаркКларус ПаркКларус Парк                            

ЖК «Кларус парк»   

 Жилой комплекс Кларус Парк - многоэтажный жилой дом.
Строительство объекта осуществляется в один этап.
Продолжительность строительства – 28 месяцев.

Фасад дома запроектирован в преимущественно синих спокойных и изящных цветах, создающих ощущение умиротворенности и спокойствия. Удобные планировки квартир варьируются от скромных двух-зоновых пространств до просторных помещений, дающих ощущение счастья, расслабленности, воодушевления. Функциональные ванные комнаты, хозяйственные отсеки и помещения для хранения домашних аксессуаров. Концепцией дома предусмотрены фитнес-зал, зимний сад, охраняемая территория дома с детской игровой зоной, отапливаемый подземный паркинг, видео-наблюдение, консьерж, эксплуатируемая кровля, 5 скоростных лифтов.

Адрес - ул. Тимирязева
Этап строительства - Строится 1 дом
Количество корпусов - 
Класс жилья - Комфорт класс
Тип здания - монолитно-кирпичный
Этажность - 23
Отделка - чистовая отделка
Высота потолков - 2,9
Парковка - подземная автостоянка
 
 Инфраструктура
Кларус Парк - это совершенно новый подход к дизайну, инжинирингу, цветовому решению и планировочным комбинациям базой для которого является уникальное месторасположение дома – в непосредственной близости от Новосибирского Зоопарка, Ботанического сада и пересечения транспортных магистралей.Вокруг дома сформирована плотная инфраструктура - аптеки, торговые центры, парки отдыха, школы, детские сады.
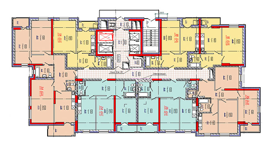
Планировки
Кларус Парк
Цена за м2
от 62 222 
до 68 381   
Застройщик:
Застройщик "Метаприбор"                                  ГК «Стрижи»

                                Тел:

                                8(383) 311-05-05  

smmscore.comSetup.ru: Создай и раскрути свой сайт бесплатно